Auftraggeber: privat
Leistung: Innenarchitektur: Raumkonzept, Licht- und Materialkonzept, Planung Einbauten
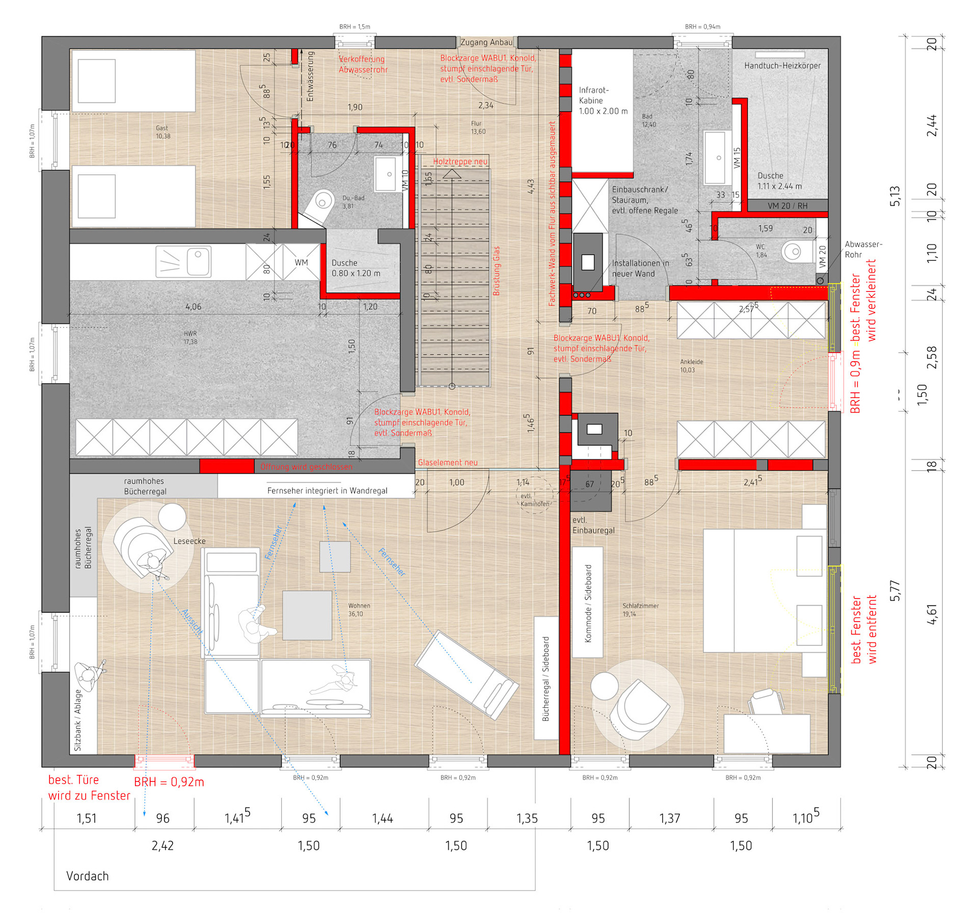
Gesamtwohnfläche: ca. 120 m²
Lage: Nähe Schwäbisch Hall
Leistung: Innenarchitektur: Raumkonzept, Licht- und Materialkonzept, Planung Einbauten
Gesamtwohnfläche: ca. 120 m²
Lage: Nähe Schwäbisch Hall
Bearbeitungszeitraum: 2020