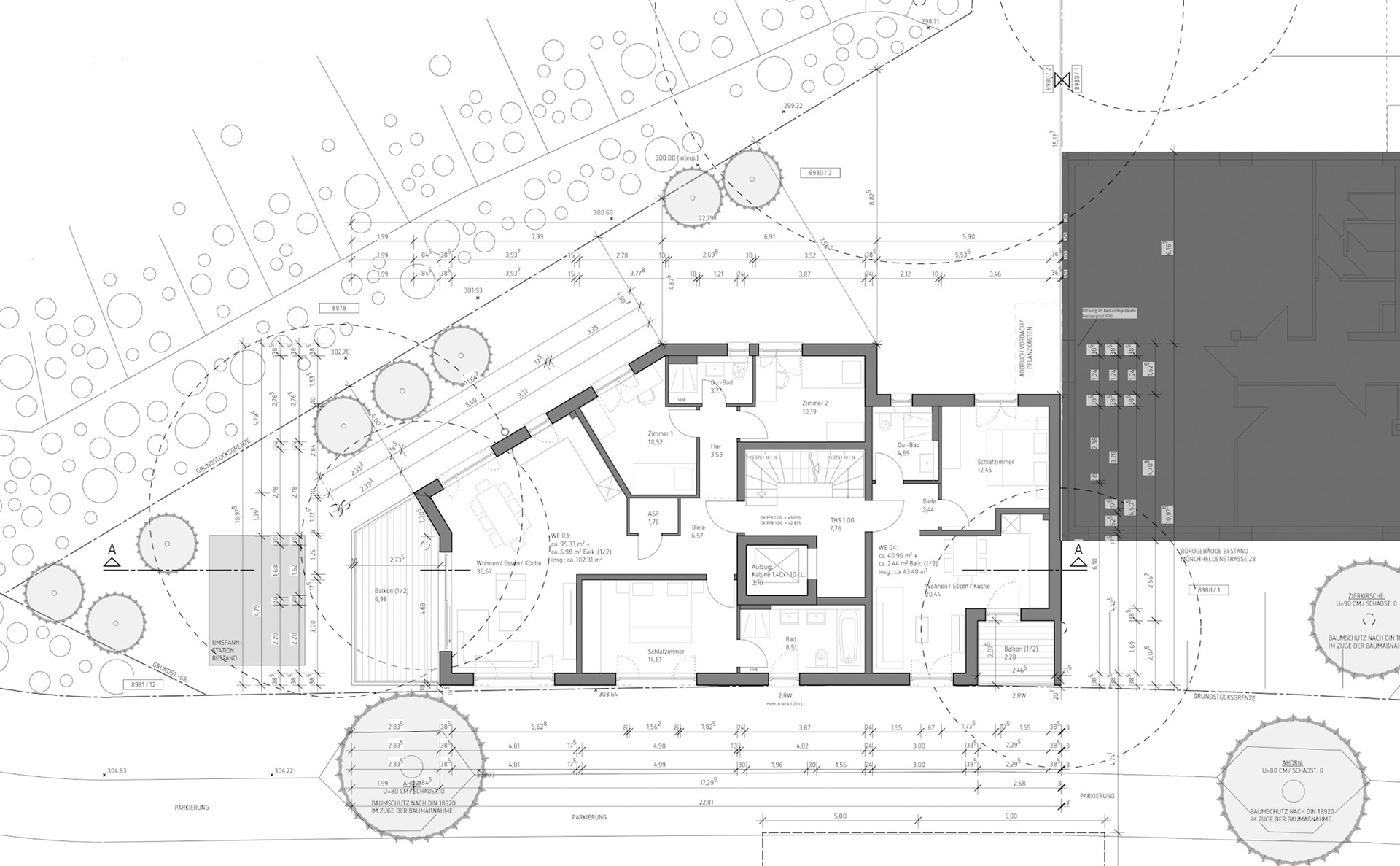
Neubau Mehrfamilienhaus
Auftraggeber: privat (Bauträger)
Leistung: Architektur LPH 1-4
Gesamtwohnfläche: ca. 450 m²
Lage: Mönchhaldenstraße 30, Stuttgart
Leistung: Architektur LPH 1-4
Gesamtwohnfläche: ca. 450 m²
Lage: Mönchhaldenstraße 30, Stuttgart
Fertigstellung: Mitte 2022