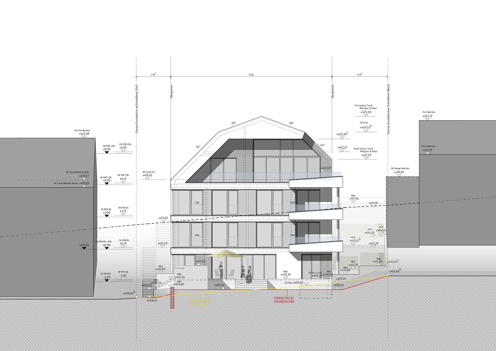
Auftraggeber: privat (Bauträger)
Leistung: Architektur LPH 1-5
Gesamtwohnfläche: ca. 620qm
Lage: Hasenbergsteige 78, Stuttgart
Stand: im Bau
Leistung: Architektur LPH 1-5
Gesamtwohnfläche: ca. 620qm
Lage: Hasenbergsteige 78, Stuttgart
Stand: im Bau




Wohnbebauung Mehrfamilienhaus mit Parkierung