Auftraggeber: privat (Bauträger)
Leistung: Architektur LPH 1-5
Gesamtwohnfläche: ca. 550 qm
Lage: Kirchheimer Straße 98, Stuttgart-Sillenbuch
Bearbeitungszeitraum: 2018
Leistung: Architektur LPH 1-5
Gesamtwohnfläche: ca. 550 qm
Lage: Kirchheimer Straße 98, Stuttgart-Sillenbuch
Bearbeitungszeitraum: 2018
 
      
      
     Ansicht Nord-Ost / Strassenseite
 
     Ansicht Nord-West
 
     Ansicht Süd-West
 
     Ansicht Süd-Ost
 
     Schnitt
 
     Grundriss Regelgeschoss
 
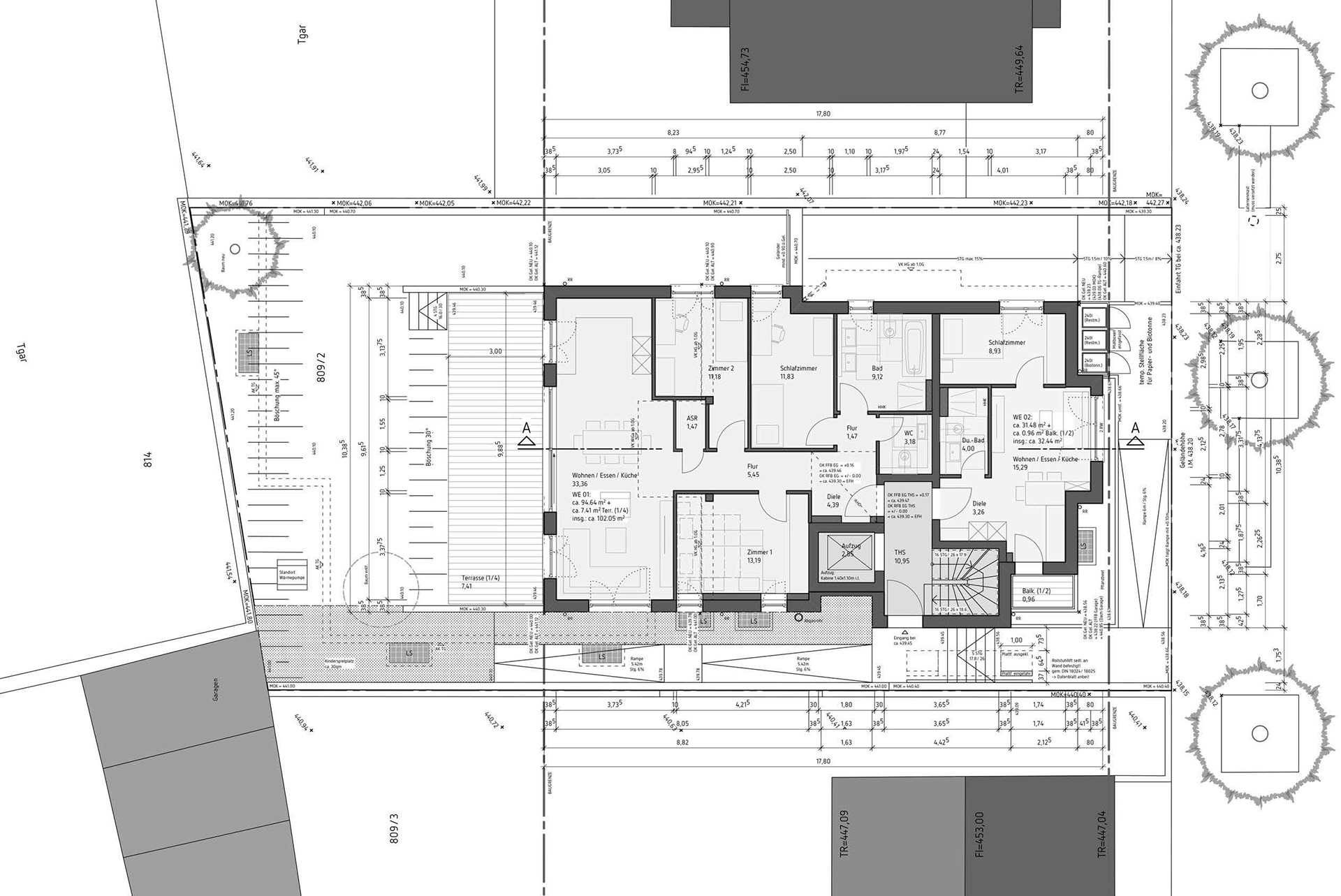
     Grundriss Erdgeschoss
 
      
    